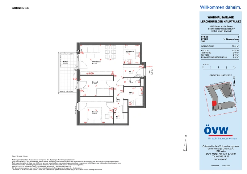
Stiege 3 / Top 7
Diese moderne Wohnung befindet sich auf dem Lerchenfelder Hauptplatz in einem traditionsreichen Kremser Stadtteil, der durch vielfältige Erholungsmöglichkeiten, eine gute Anbindung, Infrastruktur und Arbeitsplätze überzeugt.
Die Ausstattung besticht durch hochwertigen Parkettboden, Fußbodenheizung und zeitgemäß ausgestattete Sanitärräume, und schafft so ein angenehmes Wohnambiente. Ein außenliegender Sonnenschutz, elektrisch bedienbar, sorgt für Beschattung und Privatsphäre.
Die Terrassen, Balkone, Eigengärten und Dachgärten laden zu entspannten Momenten und gemütlichen Abenden im Freien ein.
In den Dachgeschosswohnungen sorgt eine Multisplit Klimaanlage, auch an heißen Tagen für ein angenehmes Raumklima.
In der Tiefgarage stehen Stellplätze zur Verfügung.
| Objekt-Nummer: 05982 |
|---|
| Miete |
| Finanzierung: Frei finanziert |
| 3 Zimmer |
| 72 m² Nutzfläche |
| € 944,29 Miete brutto |
| Erstbezug |
| 1. Obergeschoss |
| 10 m² Balkon |
| € 16.379,20 Eigenmittel |
| Verfügbar ab Ende 2026 |
Lage
Zentrale Lage: Der Hauptplatz liegt in einem gut erschlossenen Gebiet
mit einfacher Anbindung an öffentliche Verkehrsmittel und wichtige Verkehrswege.
Einkaufsmöglichkeiten: In der Nähe befinden sich zahlreiche Geschäfte,
Supermärkte und Dienstleister, die den täglichen Bedarf decken.
Freizeit und Erholung: Die Umgebung bietet viele Möglichkeiten
für Freizeitaktivitäten, darunter Parks, Wanderwege und Sporteinrichtungen.
Bildungseinrichtungen: Es gibt mehrere Schulen und Kindergärten in der Nähe, was die Gegend besonders attraktiv für Familien macht
| Details | |
|---|---|
| Objekt | Stiege 3 / Top 7 Lerchenfelder Hauptplatz, 3500 Krems |
| Objektart | Wohnung |
| Rechtsform | Miete |
| Baufortschritt | |
|---|---|
| Bauträger | Österreichisches Volkswohnungswerk, Gemeinnützige Ges.m.b.H. |
| Baubewilligung | Erteilt |
| Baufortschritt | In Bau |
| Fertigstellung | Ende 2026 |
| Kosten | |
|---|---|
| Finanzierung | Frei finanziert |
| Miete brutto | € 944,29 |
| Eigenmittel gesamt | € 16.379,20 |
| Flächendaten | |
|---|---|
| Zimmer | 3 |
| Nutzfläche | 72,81 m² |
| Geschoss | 1. Obergeschoss |
| Möblierung | Nicht möbliert |
| Balkon | 1 (10 m²) |
| Kellerabteil | 1 |
| Bad | 1 |
| Toilette | 1 |
| Dokumente |
|---|
Reservierung
Das Objekt „Stiege 3 / Top 7“ erfüllt alle Ihre Bedürfnisse? Dann sollten Sie nicht zögern und gleich heute eine unverbindliche Reservierung tätigen. Ihre Reservierung ist kostenlos.
Sollten Sie der einzige Interessent für dieses Objekt sein, können Sie entweder sofort zugreifen oder noch offene Fragen klären. Gibt es bereits andere Interessenten? Dann reihen wir Sie entsprechend Ihrer Kontaktaufnahme auf die Warteliste und halten Sie am Laufenden.
-
TopGeschossZimmerFlächePreisEigenmittel
-
{{ unit.top }}{{ unit.floor }}{{ unit.rooms }}{{ area(unit.area) }}{{ (unit.price !== null) ? currency(unit.price) : 'auf Anfrage' }}{{ (unit.equity !== null) ? currency(unit.equity) : '' }}
Keine Ergebnisse
Leider entspricht kein Objekt Ihren aktuellen Filterkriterien.



